WEBからのお問い合わせ WEBフォーム
お電話からのお問い合わせ

06-6766-2914

9:00-18:00 (火・水曜定休)

Web会員登録 Recruit Site タカセグループ 採用サイト
お電話からのお問い合わせ

06-6766-2914

9:00-18:00 (火・水曜定休)

WEBフォームからのお問い合わせ

Recruit Site

タカセグループ 採用サイト

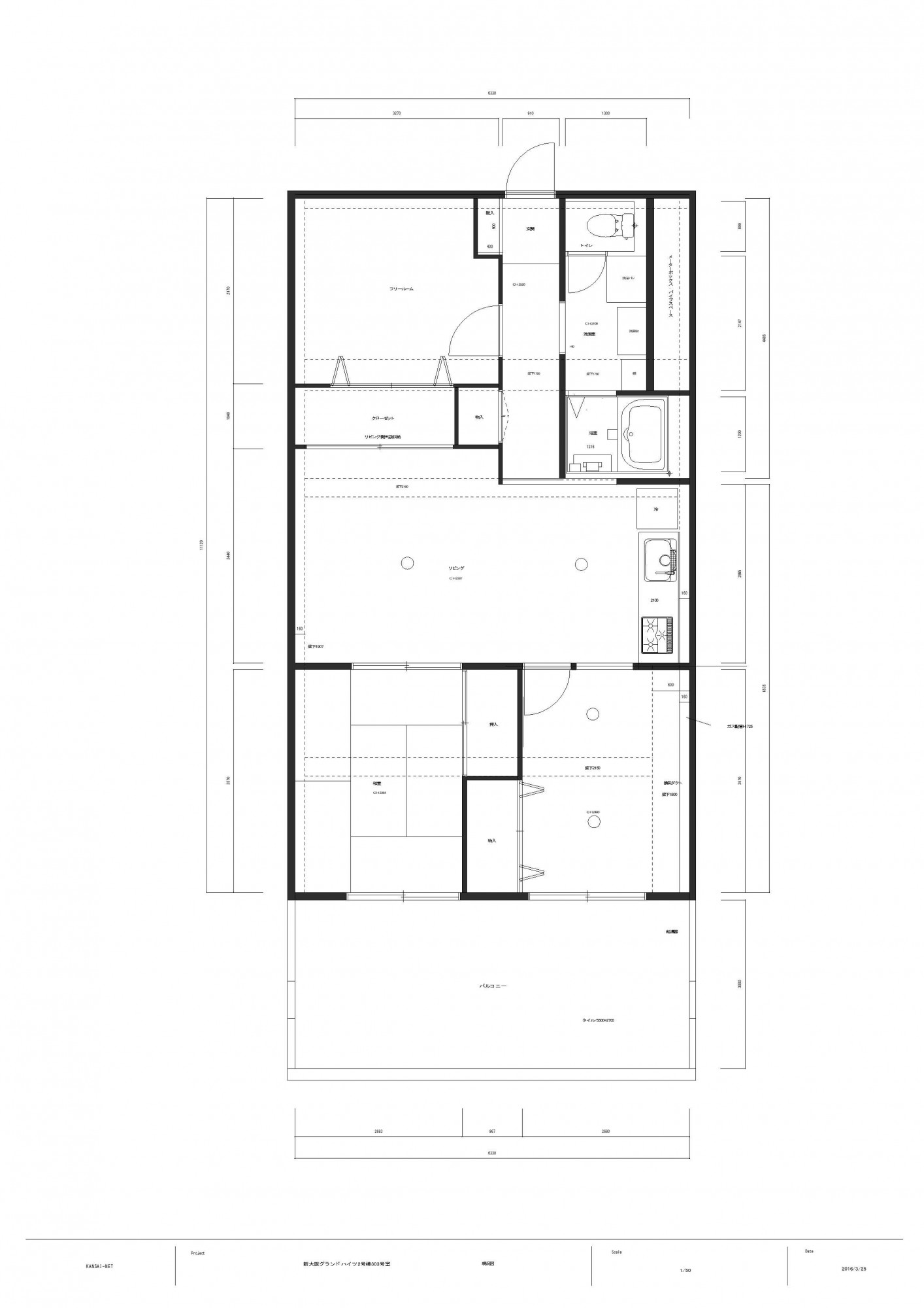
施工事例

広い玄関土間のある1LDKプラン

マンション

物件データ

物件
中古マンション
面積
70m²
エリア
新大阪
間取り
1LDK
築年数
築40年
リフォーム費用
約450万円
一覧へ戻る
施工事例 阿倍野区S様邸 和室改修工事

お電話からのお問い合わせ

タカセ不動産 本社

06-6766-2914

9:00-18:00 (火・水曜日定休)

タップで電話をかける

WEBからのお問い合わせ

お返事に2日ほどいただく場合がございます
お急ぎの場合はお電話ください