WEBからのお問い合わせ WEBフォーム
お電話からのお問い合わせ

06-6766-2914

9:00-18:00 (火・水曜定休)

Web会員登録 Recruit Site タカセグループ 採用サイト
お電話からのお問い合わせ

06-6766-2914

9:00-18:00 (火・水曜定休)

WEBフォームからのお問い合わせ

Recruit Site

タカセグループ 採用サイト

施工事例

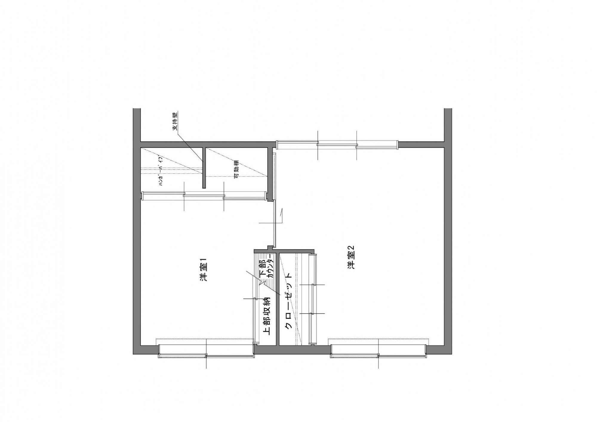
阿倍野区S様邸 和室改修工事

マンション

今回は和室2部屋をリフォームさせて頂きました。

ヒアリングを行った際に

①収納量を増やしたい

②明るい空間にして欲しい

との事でしたので、後日お見積りと3Dパースにて提案しご納得頂いた後、施工の流れとなりました。

工期は3週間ほど、住みながらのリフォームでしたので養生もしっかり行いました。

完成後は3Dのパース通りの室内に仕上がり、とても喜んで頂けました!!

私どもも施工冥利に尽きます^^

パースも掲載しておりますので是非ご覧ください。

実は弊社に頼もしいプランナーさんが居るので提案力には自信あります。もちろん施工にも自信ありますよ。

物件データ

物件
RC造り 中古マンション
面積
22m²
エリア
大阪市阿倍野区
間取り
和室2部屋
築年数
築40年程
リフォーム費用
300万弱

3Dパース

3Dパース

 

 

 

 

 

  
一覧へ戻る
施工事例 広い玄関土間のある1LDKプラン

お電話からのお問い合わせ

タカセ不動産 本社

06-6766-2914

9:00-18:00 (火・水曜日定休)

タップで電話をかける

WEBからのお問い合わせ

お返事に2日ほどいただく場合がございます
お急ぎの場合はお電話ください