タカセ不動産HOME > 店舗検索 > 高槻店 > 買う > 物件詳細
価格 | 3,380 万円 | ||
---|---|---|---|
所在地 | 大阪府守口市金田町 | ||
交通 |
大阪市営地下鉄谷町線 大日駅 徒歩29分 バス乗車16分 バス停 京阪バス 黒原 徒歩5分 |
||
学校区 | 守口市立金田小学校 250 m 守口市立庭窪中学校 1,100 m | ||
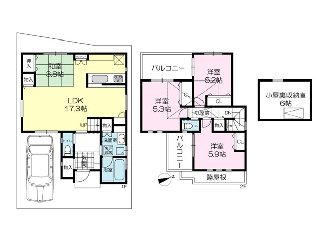
間取り | 3SLDK( 洋室 5.3・5.9・5.2 帖 / SLDK 21.1 帖 ) | ||
建物面積 |
登記簿 94.07 ㎡ ( 28.45 坪 ) |
土地面積 |
登記簿 93.23 ㎡ ( 28.20 坪 ) |
構造 | 木造 2階建て | 築年月 | 令和3年10月 |
2021年10月築 築浅戸建て♪
スーパーや生活環境施設も徒歩圏内!!
・カ―ポート付駐車場!駐車スペースには防犯カメラがついており、安心ですね♪
・閑静な住宅地になっておりますので子育てにもいいですね♪
・室内大変綺麗にお使いです!
・全室収納があり、屋根裏収納もあり収納には困りません!
・玄関にも靴箱以外にも収納があり、物が多い方にもいいですね!
・浴室暖房乾燥機もるので雨の日のお洗濯にも困りません!
・ルーフバルコニーもあり雨の日でも困りません!
・電動シャッターもあり、防犯面も安心です!
・玄関の鍵はスマートキーで手がふさがっててもドアを閉めたりできるので大変便利ですね♪
・キッチンは広く、食洗器もあり、水栓もタッチレスなのでお料理がはかどります♪
・宅配ボックスもついています!
・スーパー、コンビニ、ドラッグストア等が徒歩10分圏内にございます!
【周辺施設】
・コノミヤ寝屋川黒原店(180m)
・スギドラッグ 寝屋川黒原店(180m)
・キリン堂 守口店(450m)
・セブン-イレブン 守口金田町2丁目店(450m)
・サンディ 寝屋川黒原店(700m)
・阪急オアシス 守口店(950m)
・金田第2公園(110m)
・守口生野記念病院(800m)
・守口金田町二郵便局(600m)
・枚方信用金庫 寝屋川西支店(280m)
・・・・・・・・・・・・・・・・・・・・・・・・・・・・・・・・・・・
【高槻店】072-676-3121 までお気軽にお電話ください。
【営業時間】9:00~18:30 【定休日】火・水曜日
当店は170号線、高槻市辻子交差点を東へ、
青くて大きな「タカセ」の看板が目印です!
購入・売却・不動産の事なら弊社にお任せください!
中古戸建・中古マンションにはリフォームの提案も行っています。
全体的なリフォームはもちろん、気になる箇所のみのリフォームも可能!
これまでも経験を活かして、安心できる提案をいたします♪
不動産買取強化中ですので買い替えの方も是非ご相談ください!
・・・・・・・・・・・・・・・・・・・・・・・・・・・・・・・・・・・
採光向き | 南東 | 土地権利 | 所有権 |
---|---|---|---|
接道状況 | [ 南東 / 道路幅員 約4.5m 接道幅 公道 約8 m ] |
地目 | 宅地 |
用途地域 | 第一種住居地域 | 都市計画 | 市街化区域 |
建ぺい率 | 60 % | 容積率 | 200 % |
私道有無 | 無 | セットバック | 無 |
法令上の制限 | 準防火地域 | 駐車場 | 有 |
周辺環境 | [ コノミヤ寝屋川黒原店 ( ショッピング施設 ) 180 m ] [ スギドラッグ 寝屋川黒原店 ( ショッピング施設 ) 190 m ] [ 守口金田町二郵便局 ( 金融機関 ) 600 m ] [ セブン-イレブン 守口金田町2丁目店 ( ショッピング施設 ) 450 m ] |
設備① | ・関西電力( 電気 ) ・都市ガス( ガス ) ・公営( 水道 ) ・公共下水( 汚水 ) |
---|
設備② | ・専用バス ・ガスコンロ ( 3口 ) ・洋式トイレ ・室内洗濯機置き場 |
---|
設備③ | システムキッチン | 給湯 | 追い焚き | 洗髪洗面化粧台 |
---|---|---|---|---|
床下収納 | バルコニー | フローリング | 温水洗浄便座 | |
カウンターキッチン | 浴室乾燥機 | ルーフバルコニー | 浴室暖房 | |
食器洗浄乾燥機 |
備考 | |||||
---|---|---|---|---|---|
取引態様 | 専任媒介 | 引渡し | 指定有 2026年3月頃 | ||
現況 | 居住中 | 管理番号 | 03-43422 | ||
情報提供日 | 2025年9月28日 | 次回更新予定日 | 2025年10月28日 |
タカセ不動産 高槻店
大阪府高槻市辻子2丁目23番7号
072-676-3122
Copyright(c) タカセ不動産株式会社 All Rights Reserved