タカセ不動産HOME > 店舗検索 > 赤穂店 > 買う > 物件詳細

| 価格 | 500 万円 | ||
|---|---|---|---|
| 所在地 | 兵庫県赤穂市折方395-1 | ||
| 交通 |
JR赤穂線 天和駅 徒歩26分 |
||
| 学校区 | 赤穂西小学校 2,200 m 赤穂西中学校 2,900 m | ||
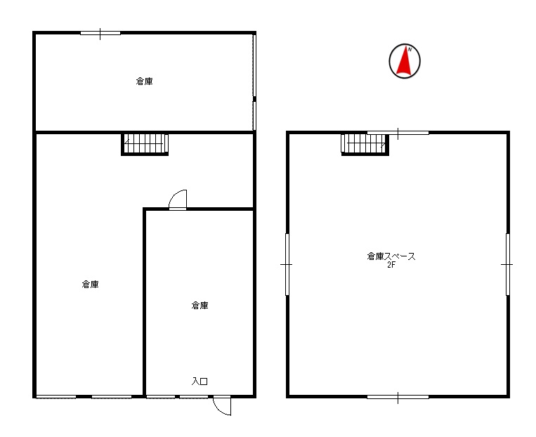
| 間取り | |||
| 建物面積 |
登記簿 194.40 ㎡ ( 58.80 坪 ) |
土地面積 |
登記簿 397.00 ㎡ ( 120.09 坪 ) |
| 構造 | 鉄骨造 2階建て | 築年月 | 昭和44年4月 |
| 利回り | 現行年間賃料 | 0.0 万円 | 現行利回り | |
|---|---|---|---|---|
| 満室時想定年間賃料 | 0.0 万円 | 満室時想定利回り | ||
| 賃貸状況 | ||||
倉庫・作業場として使いませんか?

| 採光向き | 南 | 土地権利 | 所有権 |
|---|---|---|---|
| 接道状況 | [ 南 / 道路幅員 約5m 接道幅 公道 ] |
地目 | 宅地 |
| 用途地域 | 無指定 | 都市計画 | 市街化調整区域 |
| 建ぺい率 | 60 % | 容積率 | 200 % |
| 私道有無 | 無 | セットバック | 無 |
| 法令上の制限 | 駐車場 | 5台可 | |
| 周辺環境 | [ セブンイレブン ( ショッピング施設 ) 1200 m ] [ 鷆和簡易郵便局 ( 金融機関 ) 1400 m ] [ パオーネ ( ショッピング施設 ) 3400 m ] [ 赤穂中央病院 ( 医療施設 ) 3900 m ] |
||
| 設備① | ・関西電力( 電気 ) ・個別プロパン( ガス ) ・公営( 水道 ) ・公共下水( 汚水 ) | ||
|---|---|---|---|
| 設備② | |||
|---|---|---|---|
| 設備③ | ||||
|---|---|---|---|---|
| 備考 | |||||
|---|---|---|---|---|---|
| 取引態様 | 専任媒介 | 引渡し | 相談 | ||
| 現況 | 空予定 | 管理番号 | 16-43599 | ||
| 情報提供日 | 2025年10月26日 | 次回更新予定日 | 2025年11月25日 | ||
タカセ不動産 赤穂店
兵庫県赤穂市大町11番地6
0791-55-9170

Copyright(c) タカセ不動産株式会社 All Rights Reserved