タカセ不動産HOME > 店舗検索福山店買う > 物件詳細

福山市駅家町法成寺 戸建 印刷する

法成寺、昭和が香る一軒家

【外観】
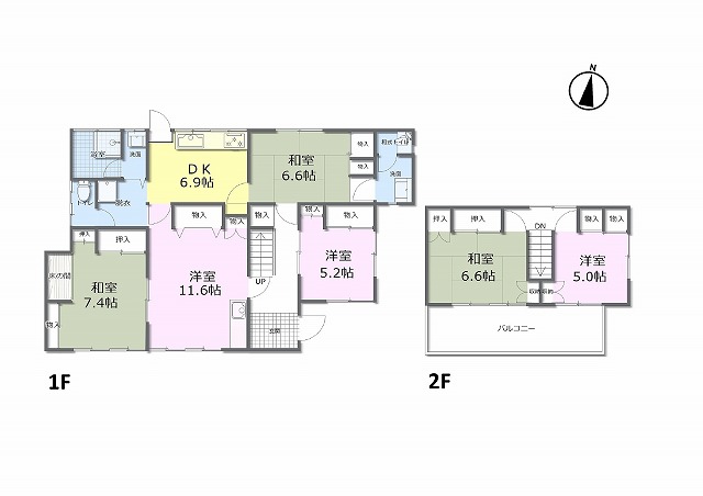
【間取り】

基本情報

価格 490 万円
所在地 広島県福山市駅家町法成寺2618番地2
交通 JR福塩線 万能倉駅  徒歩13分
バス停 万能倉局前バス  徒歩13分
学校区 駅家北小学校 783 m  駅家中学校 1,669 m
間取り 6DK( 洋室 11.6・5.2・5 帖 / 和室 7.4・6.6・6.6 帖 / DK 6.9 帖 )
建物面積 登記簿 138.08 ㎡ ( 41.76 坪 )
土地面積 登記簿 385.79 ㎡ ( 116.70 坪 )
構造 木造 2階建て 築年月 昭和47年4月

担当者のココがおすすめ!

敷地目の前には田畑が広がり、ほぼ一日中陽が入るのどかな環境です!
隣近所との距離感も程よく、部屋数の多さはプライベートを確保しやすく
、またワークスペースとしても選択肢が有りますので、用途が広がる物件です!
空き家ではありますが、オーナー様が月2回程度風を通したり、水を出したり、或いは趣味のスペースとして利用されております!
リフォームは必要ですが、ガッツリするか程よくするか等一緒に打ち合わせも可能ですので、お問い合わせはタカセ不動産株式会社福山店迄よろしくお願いいたします!

担当者顔写真
丸山 晋典

物件写真

【洋室】
趣味のスペースとして!
【洋室】
【和室】
【和室】
【キッチン】
【キッチン】
【洗面】
【洗面】
【トイレ】
【バス】
【洋室】
【和室】
【玄関】
【その他】
【眺望】
【周辺道路】

物件詳細情報

採光向き 土地権利 所有権
接道状況 [ 南 / 道路幅員 約4.3m 接道幅 公道 約20 m ]
地目 宅地
用途地域 無指定 都市計画 市街化調整区域
建ぺい率 70 % 容積率 200 %
私道有無 セットバック
法令上の制限 景観法、盛土規制法、建基法22条 駐車場  
周辺環境  [ ハローズ南駅家店 ( ショッピング施設 )  2089 m ]
 [ ディスカウントドラッグコスモス加茂店 ( ショッピング施設 )  1636 m ]
 [ TSUTAYA駅家店 ( ショッピング施設 )  2930 m ]
 [ 福山市北部市民センター ( 公共施設 )  2085 m ]
設備① ・中国電力( 電気 )  ・個別プロパン( ガス )  ・公営( 水道 )  ・汲み取り( 汚水 )  
設備② ・専用バス  ・洋式トイレ  ・室内洗濯機置き場  
設備③ 給湯 専用庭 バルコニー フローリング
バス・トイレセパレート
備考 ■確定測量完了済み
■線引前の属人性を有しない住宅です
■別途、敷地内に未登記建物(茶室・約13.08㎡)が有ります。
■西側ブロック塀は越境しています(覚書取得済み)
取引態様 媒介 引渡し 即 
現況 空家 管理番号 11-43806
情報提供日 2025年11月28日 次回更新予定日 2025年12月28日

タカセ不動産 福山店

広島県福山市南蔵王町二丁目9番31号

084-921-8541

ページトップへ