タカセ不動産HOME > 店舗検索 > 泉佐野店 > 買う > 物件詳細

| 価格 | 成約済 | ||
|---|---|---|---|
| 所在地 | 大阪府泉南郡熊取町朝代東四丁目 | ||
| 交通 |
阪和線 熊取駅 徒歩36分 バス乗車11分 バス停 朝代 徒歩3分 |
||
| 学校区 | 熊取町立南小学校 320 m 熊取南中学校 1,340 m | ||
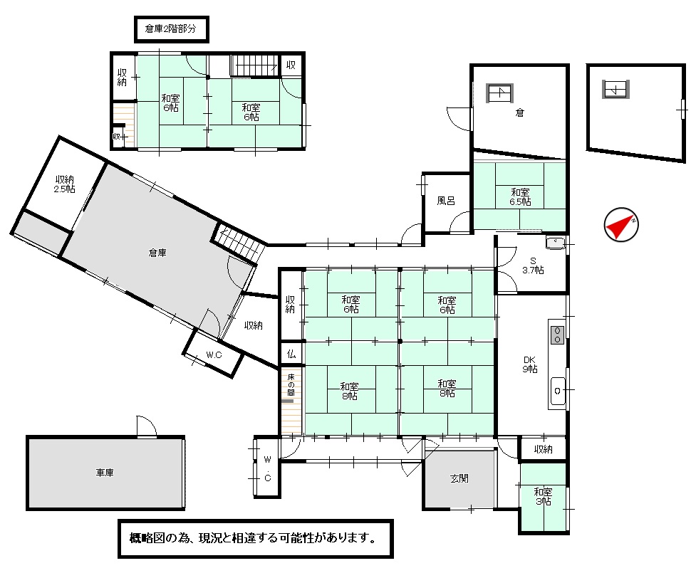
| 間取り | 8DK+S( 和室 6・6・8・8・6.5・3・6・6 帖 / DK 9 帖 / サービスルーム(納戸) 3.7 帖 ) | ||
| 建物面積 |
登記簿 200.00 ㎡ ( 60.50 坪 ) |
土地面積 |
登記簿 551.86 ㎡ ( 166.93 坪 ) |
| 構造 | 木造 2階建て | 築年月 | 昭和35年1月 |
タカセ不動産 泉佐野店
大阪府泉佐野市南泉ケ丘1丁目6−14
072-464-4306

Copyright(c) タカセ不動産株式会社 All Rights Reserved