タカセ不動産HOME > 店舗検索 > 姫路店 > 買う > 物件詳細

| 価格 | 3,180 万円 | ||
|---|---|---|---|
| 所在地 | 兵庫県姫路市辻井7丁目7-8 | ||
| 交通 |
JR神戸線 姫路駅 バス乗車17分 バス停 姫路高校前 徒歩5分 |
||
| 学校区 | 姫路市立安室東小学校 670 m 姫路市立安室中学校 720 m | ||
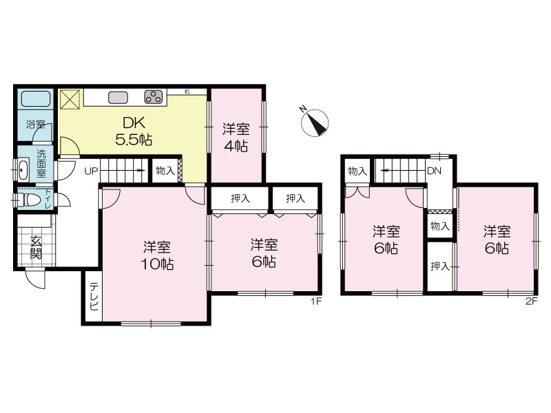
| 間取り | 5DK( 洋室 10・6・6・6・4 帖 / DK 5.5 帖 ) | ||
| 建物面積 |
登記簿 90.59 ㎡ ( 27.40 坪 ) |
土地面積 |
登記簿 219.80 ㎡ ( 66.48 坪 ) |
| 構造 | 木造 2階建て | 築年月 | 昭和50年3月 |
土地面積219.80㎡(66.48坪)の広々とした土地!
敷地内に3台分の駐車スペースがあり、来客時にも安心♪
キッチンはシステムキッチンで、壁紙が一部黄色や柄が入っており明るい雰囲気のキッチンです!
小学校、中学校との圏内です。
お買い物、銀行、コンビニ徒歩圏内です。
リビングにもアクセントクロスが施工されており、売主様のこだわりが見られます♪
寝室は落ち着いたトーンのお部屋となっており、ゆったりと休める空間となっています!
~リフォーム内容~
2023年 外壁塗装・庭・玄関扉を交換・クロス張替え・フローリング張替え・インターホン交換・ポスト交換
2021年7月、 キッチン・洗面化粧台交換・浴室・トイレ・換気扇交換新調

| 採光向き | 南 | 土地権利 | 所有権 |
|---|---|---|---|
| 接道状況 | [ 南 / 道路幅員 約7.47m 接道幅 公道 ] |
地目 | 宅地 |
| 用途地域 | 第一種低層住居専用地域 | 都市計画 | 市街化区域 |
| 建ぺい率 | 50 % | 容積率 | 100 % |
| 私道有無 | 無 | セットバック | 無 |
| 法令上の制限 | 駐車場 | 3台 | |
| 周辺環境 | [ マルアイ辻井店 ( ショッピング施設 ) 370 m ] [ セブンイレブン姫路辻井8丁目店 ( ショッピング施設 ) 300 m ] [ 木下病院 ( 医療施設 ) 860 m ] [ 姫路辻井郵便局 ( その他 ) 350 m ] |
||
| 設備① | ・関西電力( 電気 ) ・都市ガス( ガス ) ・公営( 水道 ) ・公共下水( 汚水 ) | ||
|---|---|---|---|
| 設備② | ・専用バス ・ガスコンロ ( 3口 ) ・洋式トイレ ・室内洗濯機置き場 | ||
|---|---|---|---|
| 設備③ | システムキッチン | 給湯 | 洗髪洗面化粧台 | 専用庭 |
|---|---|---|---|---|
| バス・トイレセパレート | バリアフリー | 温水洗浄便座 | 浴室乾燥機 | |
| 浴室暖房 | ペアガラス |
| 備考 | ●売主契約不適合責任免責
|
||||
|---|---|---|---|---|---|
| 取引態様 | 専任媒介 | 引渡し | 相談 | ||
| 現況 | 居住中 | 管理番号 | 09-43858 | ||
| 情報提供日 | 2026年1月16日 | 次回更新予定日 | 2026年2月15日 | ||
タカセ不動産 姫路店
兵庫県姫路市安田4丁目46番地3
079-280-5012

Copyright(c) タカセ不動産株式会社 All Rights Reserved