タカセ不動産HOME > 店舗検索 > 姫路店 > 買う > 物件詳細

| 価格 | 2,250 万円 | ||
|---|---|---|---|
| 所在地 | 兵庫県姫路市北条口1丁目55番地 | ||
| 交通 |
JR神戸線 姫路駅 徒歩7分 |
||
| 学校区 | 姫路市立白鷺小中学校小学校 1,000 m 姫路市立白鷺小中学校中学校 1,000 m | ||
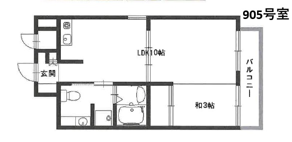
| 間取り | 4LDK( 洋室 6・9・9 帖 / 和室 3 帖 / LDK 10 帖 ) | ||
| 専有面積 |
登記簿 118.09 ㎡ ( 35.72 坪 ) |
バルコニー面積 | |
| 構造 | 鉄筋コンクリート(RC)造 建て | 築年月 | 平成14年9月 |
| 総戸数 | 52戸 | 所在階 | 9 階部分/10 階建て |
| 利回り | 現行年間賃料 | 270.0 万円 | 現行利回り | 12.00 % |
|---|---|---|---|---|
| 満室時想定年間賃料 | 270.0 万円 | 満室時想定利回り | 12.00 % | |
| 賃貸状況 | 904号室(59,000円)905号室(58,000円)906号室(53,000円)907号室(55,000円) | |||
●担当者のオススメポイント●
利回り12%のオーナーチェンジ物件
4部屋一括募集◎
●姫路駅近くの便利な物件です
●オートロック付きでセキュリティー充実
●9階なので眺望・通風・陽当たり良好です
●スーパー、病院、銀行、コンビニ行も近く便利
物件のご案内、詳細は0120-722-555
タカセ不動産姫路店までお気軽にお問合せ下さい♪
ご連絡心よりお待ちしております(^_^)v

| 採光向き | 南 | バルコニー向き | 南向き |
|---|---|---|---|
| 土地権利 | 所有権 | 敷地面積 |
登記簿 636.97 ㎡ ( 192.68 坪 ) |
| 用途地域 | 商業地域 | 都市計画 | 市街化区域 |
| 建ぺい率 | 80 % | 容積率 | 600 % |
| 管理費 | 0 円/月 | 修繕積立金 | 0 円/月 |
| 接道状況 | [ 北 / 道路幅員 約25m 接道幅 公道 約19.82 m ] |
||
| ペット飼育 | 不可 | 駐車場 | 無 |
| 周辺環境 | [ マックバリュ テラッソ姫路 ( ショッピング施設 ) 240 m ] [ 兵庫県立はりま姫路総合医療センター ( 医療施設 ) 700 m ] [ 三井住友信託銀行 姫路支店 ( 金融機関 ) 500 m ] [ セブンイレブン姫路北条口 ( ショッピング施設 ) 100 m ] |
||
| 設備① | ・関西電力( 電気 ) ・公営( 水道 ) ・公共下水( 汚水 ) | ||
|---|---|---|---|
| 設備② | ・専用バス ・IHコンロ ・洋式トイレ ・室内洗濯機置き場 | ||
|---|---|---|---|
| 設備③ | 給湯 | 洗髪洗面化粧台 | バルコニー | バス・トイレセパレート |
|---|---|---|---|---|
| 温水洗浄便座 | オール電化 | エレベーター | オートロック | |
| 備考 | ●1~3階介護事業者専用施設
●家賃の10%を介護事業者に支払っています※マンションの管理として ●契約不適合責任免責 ●904号室(26.87㎡)905号室(40.36㎡)906号室(25.28㎡) 907号室(25.58㎡) |
||||
|---|---|---|---|---|---|
| 管理会社 | |||||
| 管理形態 | 自主 | 管理方式 | なし | ||
| 取引態様 | 専任媒介 | 引渡し | 即 | ||
| 現況 | 居住中 | 管理番号 | 09-43400 | ||
| 情報提供日 | 2025年11月16日 | 次回更新予定日 | 2025年12月16日 | ||
タカセ不動産 姫路店
兵庫県姫路市安田4丁目46番地3
079-280-5012

Copyright(c) タカセ不動産株式会社 All Rights Reserved